強制循環蒸發成套設備
發布日期:2019-07-04 來源:sjhg
實物圖

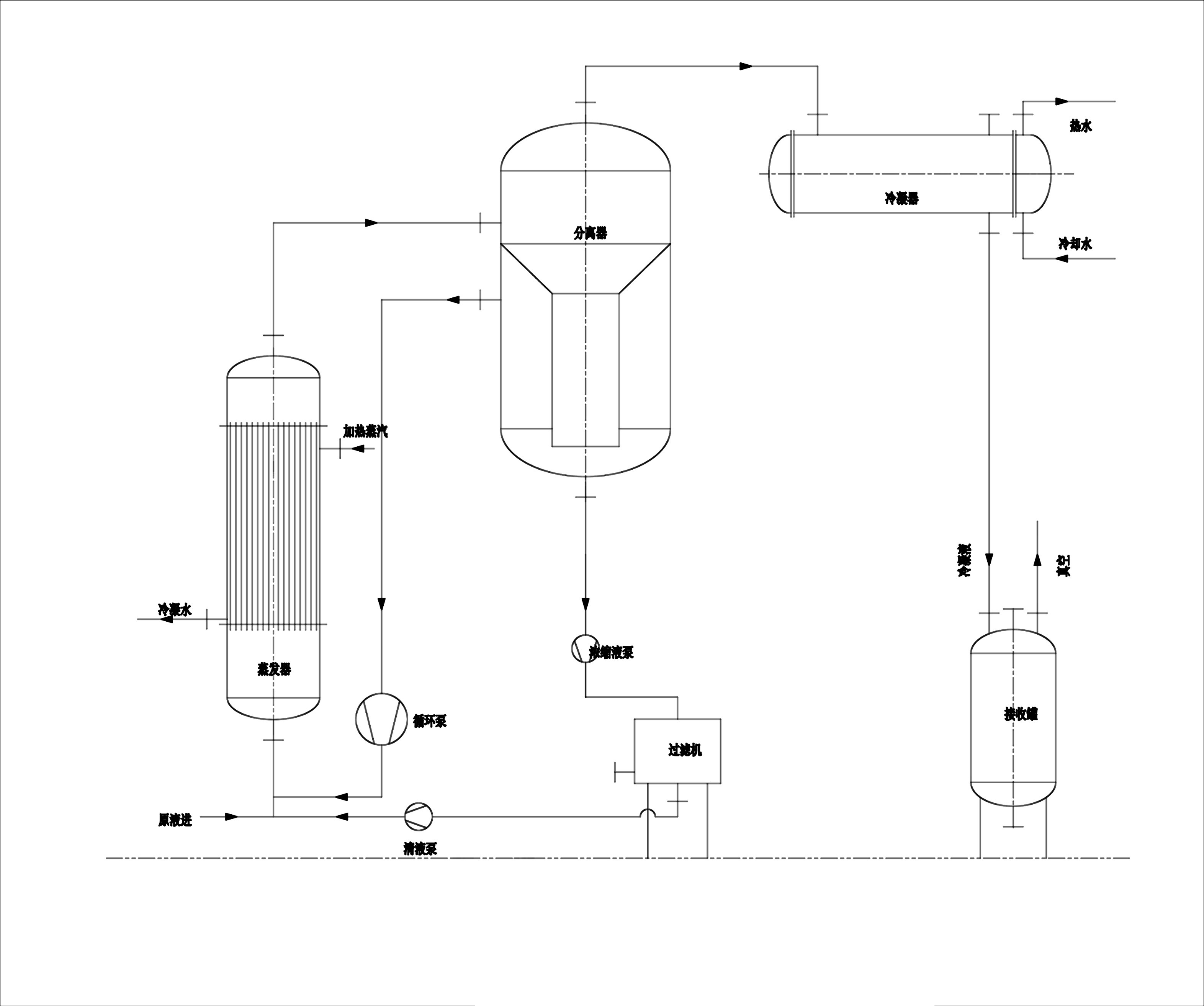
工藝流程圖
![]() | ![]() | ![]() |
工作原理
強制循環蒸發器是依靠外加力(循環泵)使液體進行循環,液體循環速度大小由泵調節,液體在加熱管內的循環流速通常在1.0~3.0米/秒范圍之內(當懸浮液中晶粒多,所用管材硬度低,液體粘度較大時,選用低值),因此,傳熱速率和生產能力較高。
溶液由泵自下而上地打到加熱室,沿加熱室自下而上的流動,溶液在加熱室內升溫(通常為2~6℃),沸騰的汽液混合物以較高的流速進入蒸發室內,室內除沫器促使汽液分離,蒸汽自上部排出,液體沿側面的連接管而循環。
應用范圍
強制循環蒸發廣泛應用在石油、化工、醫藥、鹽業、食品、環保等行業。適用于結垢性、結晶性、熱敏性(低溫)、高濃度、高粘度并且含不溶性固形物的蒸發濃縮。由于能顯著提高生產強度和改善操作條件,所以在技術上有一定的優越性。
技術參數及特點
蒸發水量可達0.5t/h~100t/h,每平方米加熱面積約需0.4~0.8千瓦。
強制循環蒸發溶液在設備內的循環主要依靠外加動力所產生的強制流動。循環速度一般可達1.0-3.5米/秒。傳熱效率和生產能力較大。
物料在換熱器內不蒸發,在分離器中閃蒸,蒸氣在分離器中由上部排出,流體受阻落下,錐形底部被循環泵吸入,再進入加熱管,繼續循環。
加熱溫差小,停留時間短,適于熱敏性物料;濃縮比大,強制循環式,使粘度較大的料液容易流動蒸發。
蒸發溫度低,熱量得到充分利用,料液受熱溫和,適用于熱敏性物料的濃縮。
蒸發器通過強制循環,在管內受熱均勻,傳熱系數高,可防止"干壁"現象。
料液在外力的作用下以高的流速運行時,就降低了結垢速率,增強了料液的湍流狀態。
同時在出口端保證一定量的壓頭,可以達到防止換熱器內蒸發的目的。
它的加熱室有臥式和立式兩種結構,液體循環速度大小由泵調節。
連續進出料,料液液位與所需濃度可實現自控。
我公司可以根據貴方提供的物料及特性,用我們的中試裝置進行試驗,為您量身定制專用、可行、低成本費用的成套設備。






